IEC 61850定义了开关站中用于分配电能(变电站)的诸多设备(例如:控制和保护设备)的描述方式,以及这些设备间的通信方式。EB是迄今为止在构建系统和理解中性变电站配置语言(SCL)方面支持该标准的唯一系统。

Arne Peters
公共关系
presse(at)aucotec.com
制造商中立性和超前性
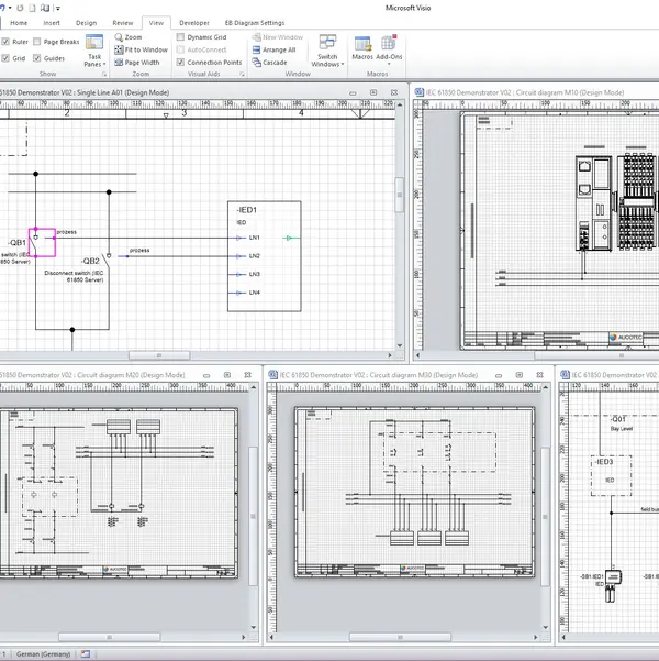
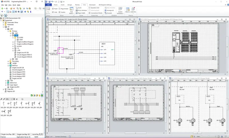
EB中集成的变电站配置工具(SCT)是IEC 61850对基于SCL的制造商中立性工具要求的后续实现。从一次设计的图形输入到抽象功能节点和数据对象的建模,再到电站模型和系统组件的关联,SCT为符合标准的站控系统生成独立于目标系统的配置数据。此外,EB能够生成一个规范性SCD文件(变电站配置描述),其总结了电站对象模型的所有信息(从拓扑结构到网络规划)。因此,系统工程设计能够与超前的标准化高价值数据存档保持一致。
“面向对象”使之得以实现
EB面向对象的特点,还能使变电站数据模型的“数字孪生”保持活跃,即:始终处于最新状态。它不会像通常那样“消失”在文件夹或文档管理系统中。每个对象在模型中只存在一次,变更始终具有跨学科的特点。AUCOTEC产品经理Michaela Imbusch表示,“得益于SCT集成,支持IEC-61850的设备能够自动对齐。”这确保了电气工程设计和符合标准的开关站描述的一致结合。
无需具备高深的知识
Imbusch解释道,“得益于EB对电站的数字虚拟化,每台设备的逻辑节点只需通过图形方式连接至智能电子设备即可完成创建。因此,用户无需更加深入地了解标准,因为每台设备的所有重要信息和数据均保存在平台中。”在这里,它还为用户处理其他操作。
由于SCT和EB同步耦合,冗余条目和数据维护已成为明日黄花。此外,规格说明文件(.SSD)数据可以通过SCT从EB中检索,并传输到符合IEC 61850的工程设计流程中,以实现电站配置。因此,从概览电路图到设备的工程设计细节,过程链的一致性进一步提升。避免了协调错误,既能节省时间,又可节约成本。
下載




