核心亮点一览
持久的可靠性
作为一款精密高效的电气设计工具,ELCAD已在市场上成功应用超过三十载。ELCAD的每个新版本从一开始就与旧版本数据兼容,确保其成为一项长期安全的投资。整套操作理念以直观高效为导向,持续的开发与质量管理保障了卓越的性能与可靠性。

轻松编制文档
基于IEC、DIN和ANSI可视化标准及符号库,可快速生成电气原理图。端子排、接线图、物料清单和电缆清册等表单均实现全自动生成,这是创建完整布线手册的最快捷方式。

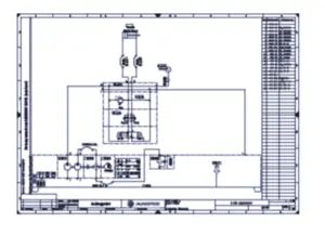
液压与气动
除电气设计外,ELCAD还能依据适用标准完成液压与气动系统的文档编制。当然,这包含将各类电气执行器与对应电气元件进行跨专业关联。

控制柜布局图
借助自动生成的物料清单,使用ELCAD轻松完成控制柜、操作面板及配电盘的布局设计。

系统集成
ELCAD支持与其他系统的数据交互。PLC信号与输入输出的对应关系可直接传输至其设计工具。通过SmartPDF功能,可生成紧凑且具备导航功能的完整项目文档,便于向客户展示。








