
© istockphoto.com / Mailson Pignata
流程工厂设计
涵盖FEED、工艺设计至详细设计的化工工厂与装备建造
联系信息:
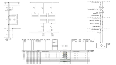
以P&ID中创建的基准控制方案为例,它能向工程师明确所需的输入/输出通道数量。与此同时,用电设备清单为配电系统及其控制提供参数依据。通过标准化模板,工程师可再次实现完整控制柜的设计。除了整合所有工程成果外,Engineering Base还能根据适用的IEC、ISA和ISO标准生成全套工厂文档,并配备自动变更检测与版本控制功能。

在Engineering Base中,自动化系统的逻辑设计可与硬件设计并行开展。在此平台上可实现P&ID控制要求的程序编写,并构建多层次安全机制。所需的报警信号可直接细化定义,并能在后续工作流程中持续优化使用。平台内的信号清单与报警清单始终保持动态更新,既是软件报告的基础,也可作为调试阶段因果矩阵的编制依据。

硬件和软件设计过程可加快自动化系统的配置和编程速度。系统生成的数据采用中性格式,可通过Excel或AutomationML等通用数字数据交换格式传输至各制造商的专用目标系统。通过这种方式,可实现完全预定义且经过测试的模块化方案,以最小投入完成设计、构建和实施全过程。
